2013
ITA – Habitação Estudantil
institucional
Local: São José dos Campos, SP
Área do Terreno: 114.000m²
Área Construída: 70.880m²
Autores: Luiz Felipe Aflalo Herman, Roberto Aflalo Filho, Grazzieli Gomes, José Luiz Lemos
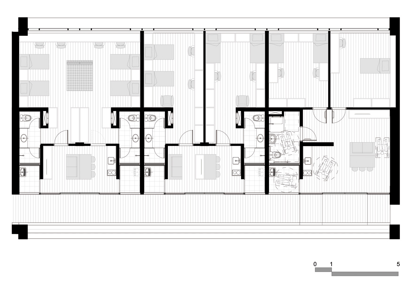
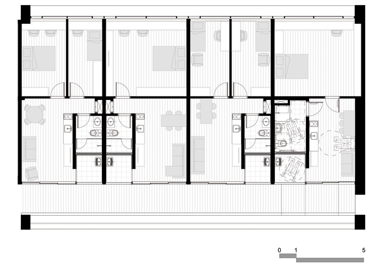
O novo conjunto habitacional do Instituto Tecnológico de Aeronáutica (ITA) responde ao desafio de ampliar a capacidade de alojamento para estudantes da instituição, acompanhando a previsão de aumento das vagas nos cursos de graduação e pós-graduação. Os 29 blocos de dois ou três pavimentos dialogam com o masterplan original da universidade, elaborado por Oscar Niemeyer nos anos 1940. Se a ideia dos edifícios baixos, lineares e horizontais foi mantida, sua implantação agora segue uma lógica menos cartesiana em prol da criação de espaços mais diversificados entre os prédios. Ao desalinhá-los, surgem jardins que ora se abrem ora se fecham de acordo com o uso proposto: ora circulação ora permanência. Os 692 apartamentos contemplam plantas de 75 m2 (para até quatro graduandos) e 50 m2 (para até dois pós-graduandos ou um casal) e acomodam até 2048 pessoas. Do total de unidades, 5% são adaptadas para pessoas com deficiência, por isso estão sempre localizadas nas extremidades térreas dos edifícios. Os dormitórios contam com grandes janelas voltadas para as áreas verdes mais resguardadas, espaço para abrigar bancadas de estudo, banheiros com vaso e chuveiro compartimentados (o que facilita o compartilhamento) e estar com cozinha, que pode se abrir para a circulação externa, incorporando-a como ambiente de convivência. Em cada apartamento, existe uma área de serviço e um depósito para bicicletas, separados do corredor central por elementos vazados de concreto. Interligados por passarelas metálicas, os edifícios empregam estrutura de concreto, com lajes pré-moldadas do mesmo material, cobertura de telhas metálicas termoacústicas e painéis de alumínio composto nas fachadas. O conjunto se organiza ao longo de duas promenades elevadas – que, por sua vez, refazem os antigos caminhos pelo terreno existente, demarcados pelo pisoteio dos passantes. Elas configuram eixos de circulação de bicicletas, ao mesmo tempo em que atuam como cobertura para a circulação térrea, repleta de outros serviços, como academia, lavanderia, salas de jogos, diretório acadêmico, lanchonetes, entre outros. Não à toa, essas passarelas suspensas ganharam no escritório o apelido de High Line, o parque novaiorquino implantando em uma antiga via férrea elevada.
Colaboradores:
Coordenação: Marcio Orsi.
Equipe: Julia Pinheiro, Gustavo Oliveira, Ana Beatriz Palma, Cristiane Tieme Urakawa, Eduardo Mizuka, Daniela Mungai, Reginaldo Okusako, Juliana Baldocchi, Joon Park, Marina Malagolini, Gabriel Braga, Bruno Vargas, Marcelo Nagai, Alan Lima de Holanda, Kenzo Abiko.
Texto: Marianne Wenzel
2013
ITA – Habitação Estudantil
institucional
Local: São José dos Campos, SP
Área do Terreno: 114.000
Área Construída: 70.880
Autores: Luiz Felipe Aflalo Herman, Roberto Aflalo Filho, Grazzieli Gomes, José Luiz Lemos
O novo conjunto habitacional do Instituto Tecnológico de Aeronáutica (ITA) responde ao desafio de ampliar a capacidade de alojamento para estudantes da instituição, acompanhando a previsão de aumento das vagas nos cursos de graduação e pós-graduação. Os 29 blocos de dois ou três pavimentos dialogam com o masterplan original da universidade, elaborado por Oscar Niemeyer nos anos 1940. Se a ideia dos edifícios baixos, lineares e horizontais foi mantida, sua implantação agora segue uma lógica menos cartesiana em prol da criação de espaços mais diversificados entre os prédios. Ao desalinhá-los, surgem jardins que ora se abrem ora se fecham de acordo com o uso proposto: ora circulação ora permanência. Os 692 apartamentos contemplam plantas de 75 m2 (para até quatro graduandos) e 50 m2 (para até dois pós-graduandos ou um casal) e acomodam até 2048 pessoas. Do total de unidades, 5% são adaptadas para pessoas com deficiência, por isso estão sempre localizadas nas extremidades térreas dos edifícios. Os dormitórios contam com grandes janelas voltadas para as áreas verdes mais resguardadas, espaço para abrigar bancadas de estudo, banheiros com vaso e chuveiro compartimentados (o que facilita o compartilhamento) e estar com cozinha, que pode se abrir para a circulação externa, incorporando-a como ambiente de convivência. Em cada apartamento, existe uma área de serviço e um depósito para bicicletas, separados do corredor central por elementos vazados de concreto. Interligados por passarelas metálicas, os edifícios empregam estrutura de concreto, com lajes pré-moldadas do mesmo material, cobertura de telhas metálicas termoacústicas e painéis de alumínio composto nas fachadas. O conjunto se organiza ao longo de duas promenades elevadas – que, por sua vez, refazem os antigos caminhos pelo terreno existente, demarcados pelo pisoteio dos passantes. Elas configuram eixos de circulação de bicicletas, ao mesmo tempo em que atuam como cobertura para a circulação térrea, repleta de outros serviços, como academia, lavanderia, salas de jogos, diretório acadêmico, lanchonetes, entre outros. Não à toa, essas passarelas suspensas ganharam no escritório o apelido de High Line, o parque novaiorquino implantando em uma antiga via férrea elevada.
Colaboradores:
Coordenação: Marcio Orsi.
Equipe: Julia Pinheiro, Gustavo Oliveira, Ana Beatriz Palma, Cristiane Tieme Urakawa, Eduardo Mizuka, Daniela Mungai, Reginaldo Okusako, Juliana Baldocchi, Joon Park, Marina Malagolini, Gabriel Braga, Bruno Vargas, Marcelo Nagai, Alan Lima de Holanda, Kenzo Abiko.
Texto: Marianne Wenzel

















